Projets
Agence
Projets
Agence
Miguel Martins

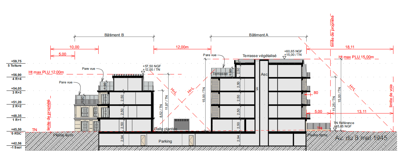
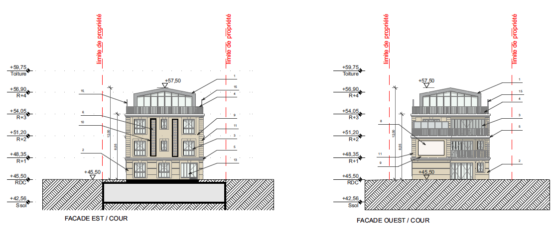
Construction de 20 logements

Construction d'un ensemble immobilier de 20 logements au Perreux-sur-Marne (94). En cours I Habitat I Maître d'ouvrage : SCCV LE PERREUX - 8 MAI 1945

2023
Le Perreux-sur-Marne, France
AA21657

image 3d projet

You may also like

Réhabilitation d'un ancien corps de ferme
Rénovation énergétique de 156 logements
Réhabilitation d’un atelier en loft
Rénovation des parties communes pour 100 logements
Rénovation énergétique de 114 logements
Rénovation énergétique de 40 logements
Réhabilitation d'un local d'activité
Rénovation énergétique de 226 logements
Rénovation énergétique de 59 logements
Reportage "In'li pour un logement abordable et durable"
APOSTROPHE ARCHITECTURE