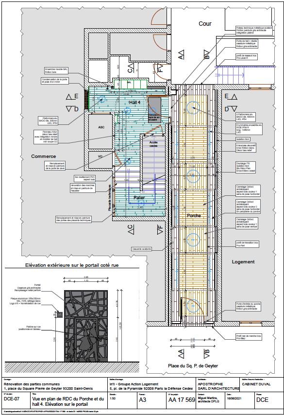
Rénovation des parties commune d'une résidence de 100 logements à Saint-Denis (93). Phase DCE. I Habitat I Maître d'ouvrage : IN'LI I Partenaire : Duval
IMAGE 3d PROJET